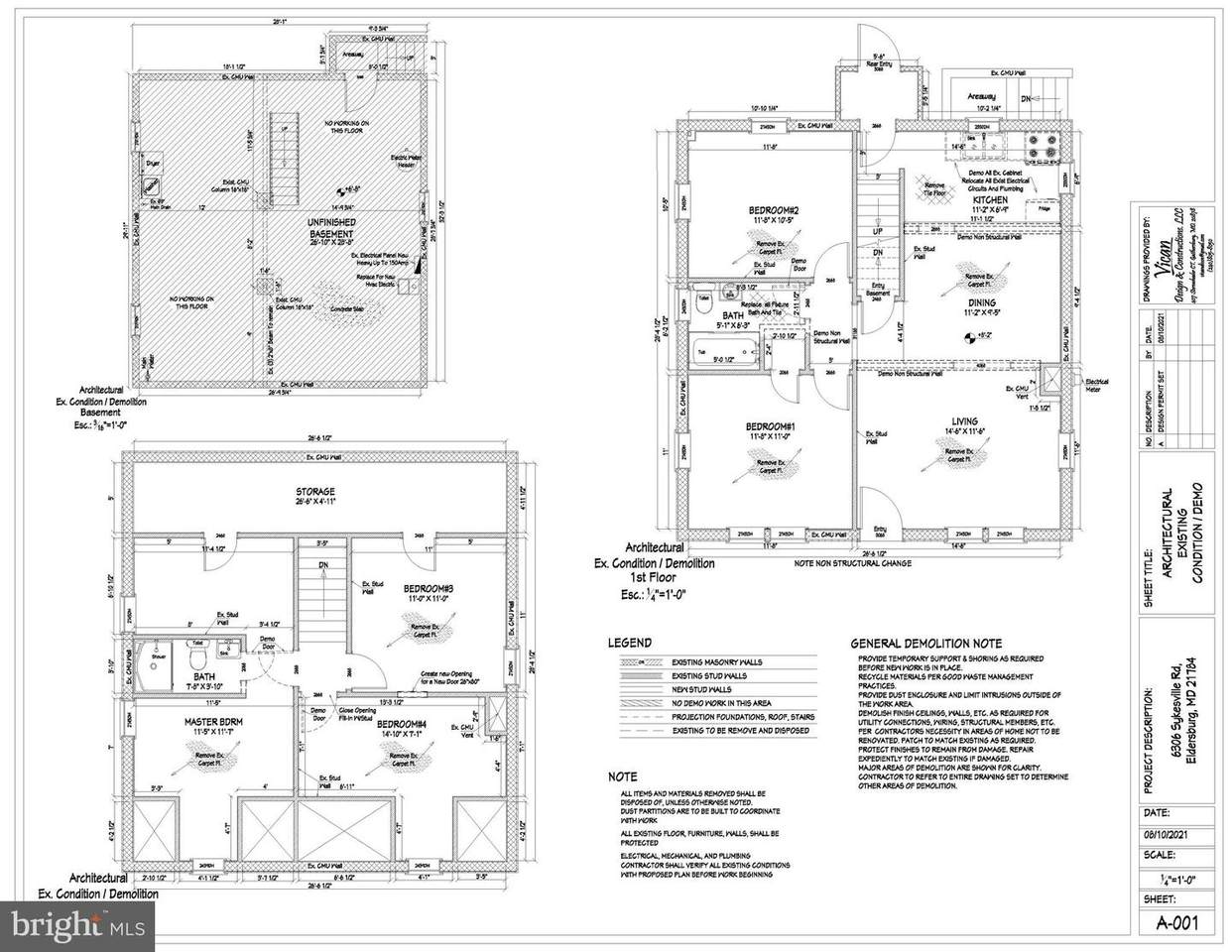
Description
Office space available with parking off of Sykesville road, incredible road signage and convenient location. Property to be renovated for tenant, floor plans are current proposed drawings. Fantastic place for office location for small to medium sized companies.
Description
Office space available with parking off of Sykesville road, incredible road signage and convenient location. Property to be renovated for tenant, floor plans are current proposed drawings. Fantastic place for office location for small to medium sized companies.
©2025 Bright MLS, All Rights Reserved. IDX information is provided exclusively for consumers' personal, non-commercial use and may not be used for any purpose other than to identify prospective properties consumers may be interested in purchasing. Some properties which appear for sale may no longer be available because they are for instance, under contract, sold, or are no longer being offered for sale. Information is deemed reliable but is not guaranteed accurate by the MLS or ROSS | RESIDENTIAL | RE/MAX Realty Services. Some real estate firms do not participate in IDX and their listings do not appear on this website. Some properties listed with participating firms do not appear on this website at the request of the seller. Data last updated: 2025-12-11T11:54:19.97.
